多年经验,专业从事
解决环境污染问题

概述
沉淀池工艺是依托污泥混凝、循环、斜管分离及浓缩等多种理论,通过合理的水力和结构设计,开发出的集泥水分离与污泥浓缩功能于一体的新一 代沉淀 工艺。该工艺特殊的反应区和澄清区设计, 尤其适用于中水回用和各类废水高标准排放领域。
工作原理
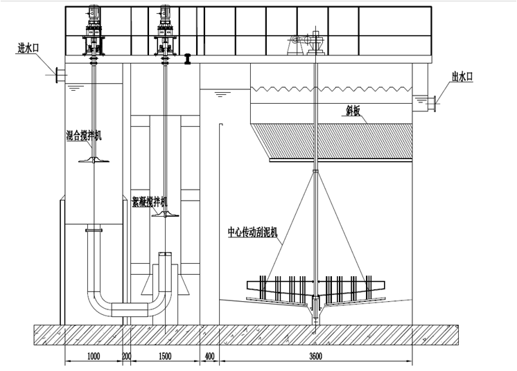
沉淀池由反应区和澄清区两部分组成。反应区包括混合反应区和推流反应区;澄清区包括入口预沉区、鈄管沉淀区及浓缩区。
在混合反应区内,靠搅拌器的提升混合作用完成泥渣、药剂、原水的快速凝聚反应,然后经叶轮提升至推流反应区进行慢速絮凝反应,以结成较大的絮凝体。整个反应区(混合和推流反应区)可获得大量高密度均质的矾花,这种高密度的矾花使得污泥在沉淀区的沉降速度较快,而不影响出水水质。
结构图
在澄清区,矾花慢速地从预沉区进入到沉淀区使大部分矾花在预沉区沉淀,剩余矾花进入斜管沉淀区完成剩余矾花沉淀过程。矾花在沉淀区下部累积成污泥并浓缩,浓缩区分为两层, 一层位于排泥斗上部,经泵提升至反立池进水端以循环利用; 一层位于排泥斗下部,由泵排出进入污泥处理系统。澄清水通过集水槽收集进入后续处理构筑物。